Casa DR

Obra Nueva

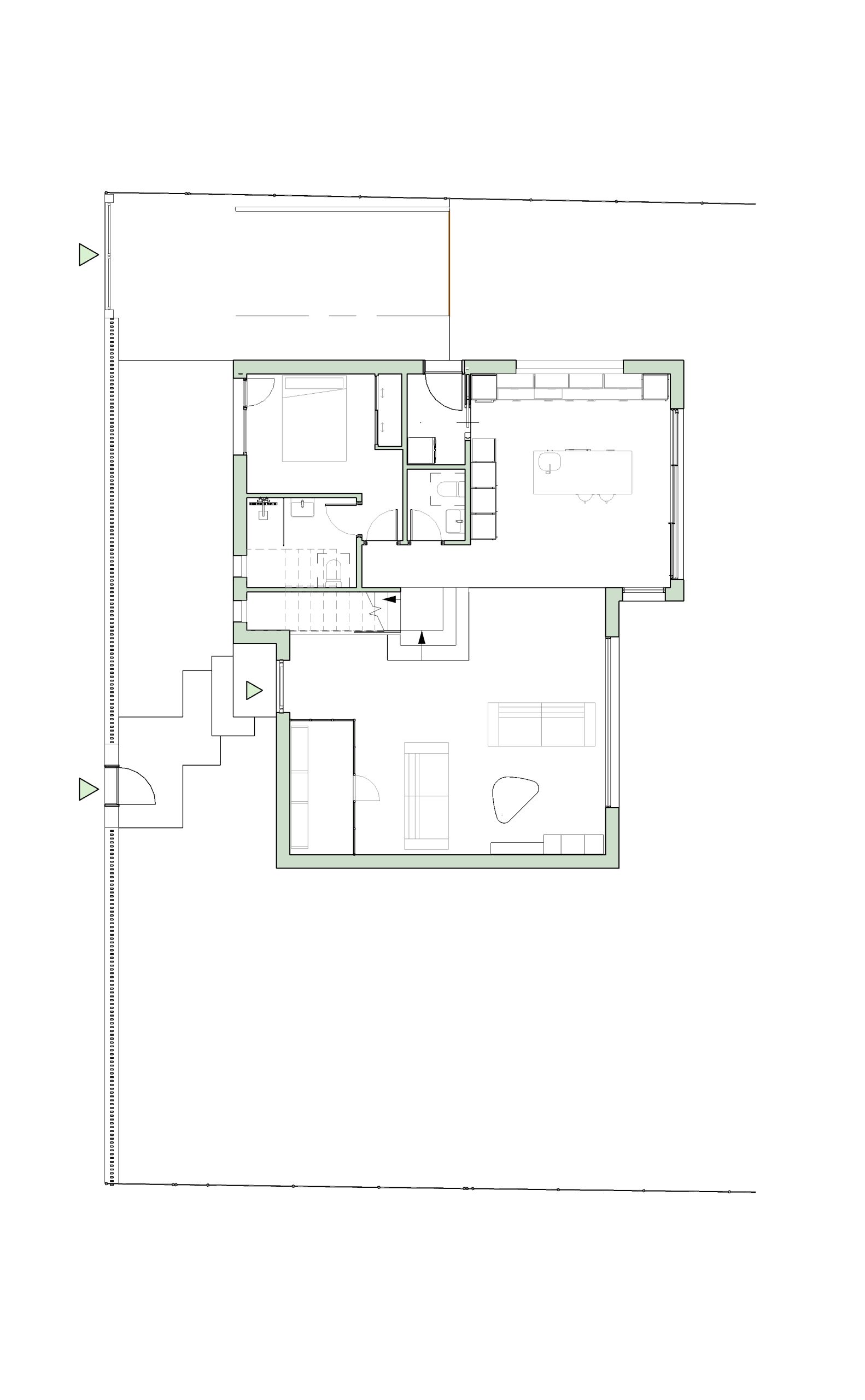
Vivienda unifamiliar con línea vanguardista

Casa DR

Características

Sup. útil: 168.75 m²

Dormitorios: 3

Baños: 3

Aseos: 1

Descripción del proyecto

Ubicada al pié de la sierra madrileña, esta vivienda se plantea como un refugio cercano a la naturaleza. Conjugando dos volúmenes prismáticos que se contraponen a la curva naturaleza del entorno.

Las necesidades del cliente implicaban espacios fluidos, grandes aperturas a la parcela y conexión visual continua con la naturaleza.

 

Fecha

Enero 2026

Soluciones inovadoras

El uso de estructuras prefabricadas nos permite gran libertad en el diseño, combinando grandes aperturas y espacio fluidos.

La implantación de la vivienda rebajando la cota de la parcela para generar un espacio inferior iluminado, además de permitir la ventilación del Radón presente en la localidad, permite enfatizar la ligereza del edificio.

Enfoque del diseño

El proyecto utiliza la contraposición entre la volumetría recta, industrial, generada por el hombre y la curva continua y fluida de la naturaleza, aproximando el prisma habitado a la naturaleza preexistente.

Esta aproximación se enfatiza con el uso del voladizo del prisma superior, generando un espacio de refugio en planta baja, y difuminando los límites entre interior y exterior.

Los pavimentos continuos enfatizan la continuidad espacial, reforzada con las grandes superficies de vidrio que conectan el interior y el exterior.

En el exterior los materiales oscuros de la fachada, permiten una presencia discreta, dejando el protagonismo a la naturaleza circundante.

Retos en el proyecto

La industrialización de la vivienda y la construcción se encuentra en una fase inicial de implantación generalista, planteando nuevas posibilidades y nuevos desafíos.

En esta vivienda se emplea extensamente el sistema steel frame, reduciendo tiempos y mejorando la versatilidad de la envolvente. 

El gran voladizo del cuerpo superior se equilibra con una estructura cerchada en el espesor de la fachada que integra envolvente y elemento resistente.

Atención al detalle

En una vivienda de altas prestaciones la atención al detalle es fundamental. En este proyecto se han cuidado los detalles en cada elemento, desde la relación entre exterior-interior hasta los encuentros entre materiales.

  • Climatización por suelo radiante
  • Iluminación indirecta
  • apoyos flotantes
  • carpinterías de perfil reducido y hojas ocultas

Imágenes conceptuales generadas por IA

Comparte este proyecto

J84 Arquitectos

J84 Arquitectos es un estudio de arquitectura y diseño, con sede en Madrid, orientado al cliente y a la máxima atención al detalle, para conseguir un diseño la más alta calidad, desde su fundación en 2020.

Casa JD